Rekonštrukcia a prístavba rodinného domu, Bernolákovo

Rodinný dom so sedlovou strechou sa nachádza v dedinskej zástavbe, ktorú sme rešpektovali. Pôvodnú stavbu sme prerobili do nízkoenergetického štandardu, vyriešili odkanalizovanie, dom zateplili a povalu prerobili na podkrovie.

Hlavná hmota nového domu je na rovnakom pôdoryse ako pôvodná stavba, ale pridali sme sem kuchynskú prístavbu. Na prízemí sú vstupné priestory, denná zóna aj spálne. V podkroví je hosťovská izba, knižnica a horná časť detskej izby.

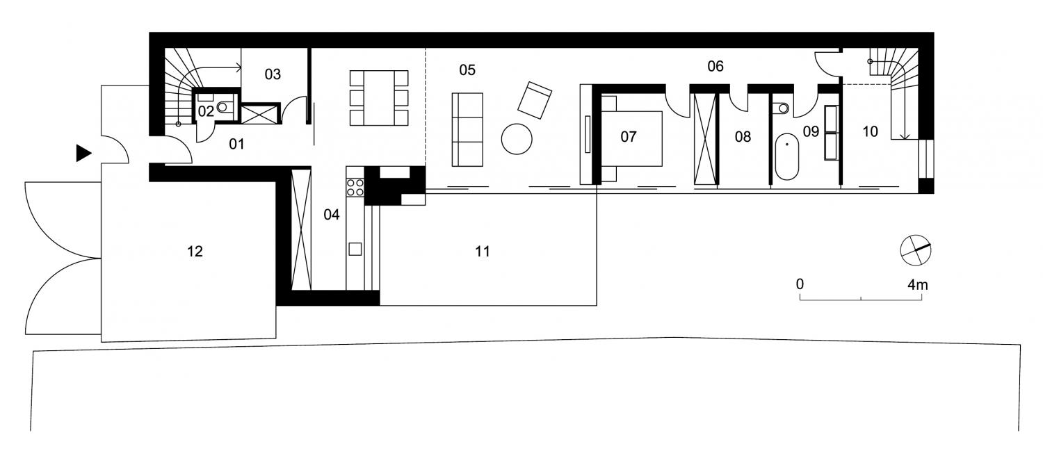
Pôdorys prízemia 110,2 m² (celková plocha 169,1 m²)

01 zádverie 7,8 m² 02 wc hostia 1,3 m² 03 sklad 4,5 m² 04 kuchyňa 10,4 m² 05 jedáleň spojená s obývačkou 40,6 m² 06 nočná chodba 9,5 m² 07 hlavná spálňa 11,9 m² 08 šatník 5,2 m² 09 kúpeľňa 6,9 m² 10 detská izba 12,1 m² 11 terasa 12 prestrešené parkovisko

Pôdorys podkrovia 58,9 m² (celková plocha 169,1 m²)

12 kúpeľňa hostia 5,8 m² 13 izba hostia 17,8 m² 14 galéria s knižnicou 7,2 m² 15 detská izba (horná časť) 28,1 m²


Prehľadávaj

Kategória

Rozloha

Cena

vlastnosti