Trojizbový mezonet, Ružinov

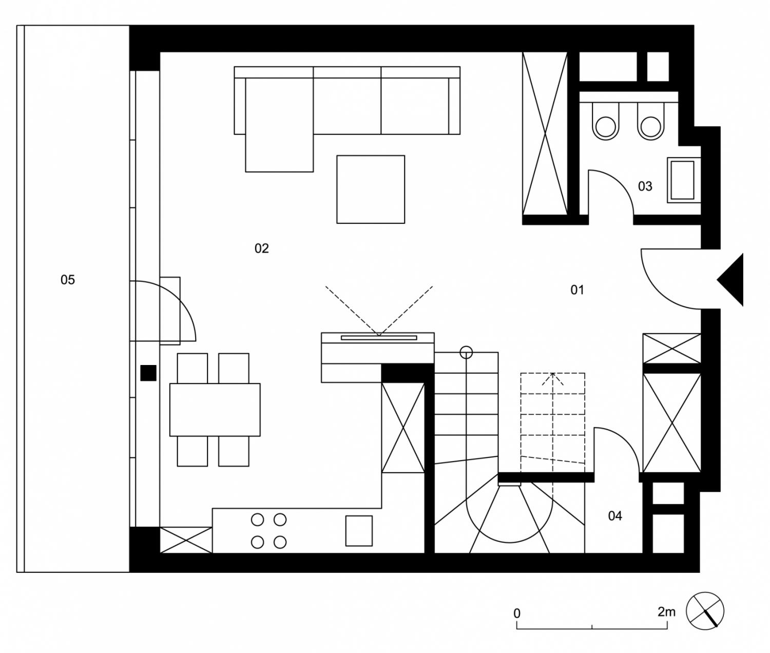
V trojizbovom mezonete sme riešili zariadenie dennej zóny a šatníka. V obývačke sme oproti pôvodnému konceptu vymenili sedenie a televízor, čím sme získali priestor pre poriadnu sedačku a zároveň vytvorili zaujímavú "krbovú" tv skrinku.

Fotografie

Pre tlač

Stiahnúť

Optimalizované rozlíšenie

Stiahnúť

pre web

Stiahnúť

Ostatné

db Publikačné plány (pdf)

Stiahnúť

Stiahnúť

Prehľadávaj

Priestory

Rozloha

Cena

vlastnosti