Trojizbový mezonet, Ružinov

V trojizbovom mezonete sme riešili zariadenie dennej zóny a šatníka. V obývačke sme oproti pôvodnému konceptu vymenili sedenie a televízor, čím sme získali priestor pre poriadnu sedačku a zároveň vytvorili zaujímavú "krbovú" tv skrinku.

Pôvodný priestor počítal s umiestnením TV na stene, kam sme navrhli sedačku. Pri tomto riešení by bola sedačka otočená chrbtom do priestoru a vznikli by dva koridory, jeden za sedačkou a druhý medzi sedačkou a televízorom. Náš návrh ich spojil do jedného, čo priestor opticky zväčšilo.

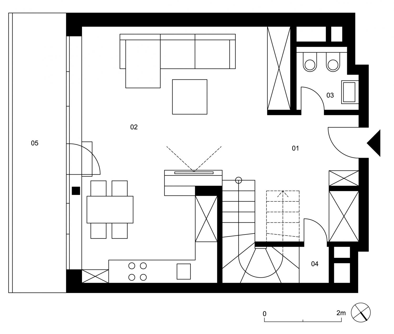
Nový pôdorys 43,4 m²

01 vstupná hala 10,3 m² / 02 denný priestor (obývačka, kuchyňa, jedáleň) 27,9 m² / 03 wc hostia 2,5 m² / 04 sklad 2,7 m² / 05 balkón

Pôvodný pôdorys 43,4 m²


Prehľadávaj

Priestory

Rozloha

Cena

vlastnosti