Bungalov so šikmou strechou, Malinovo

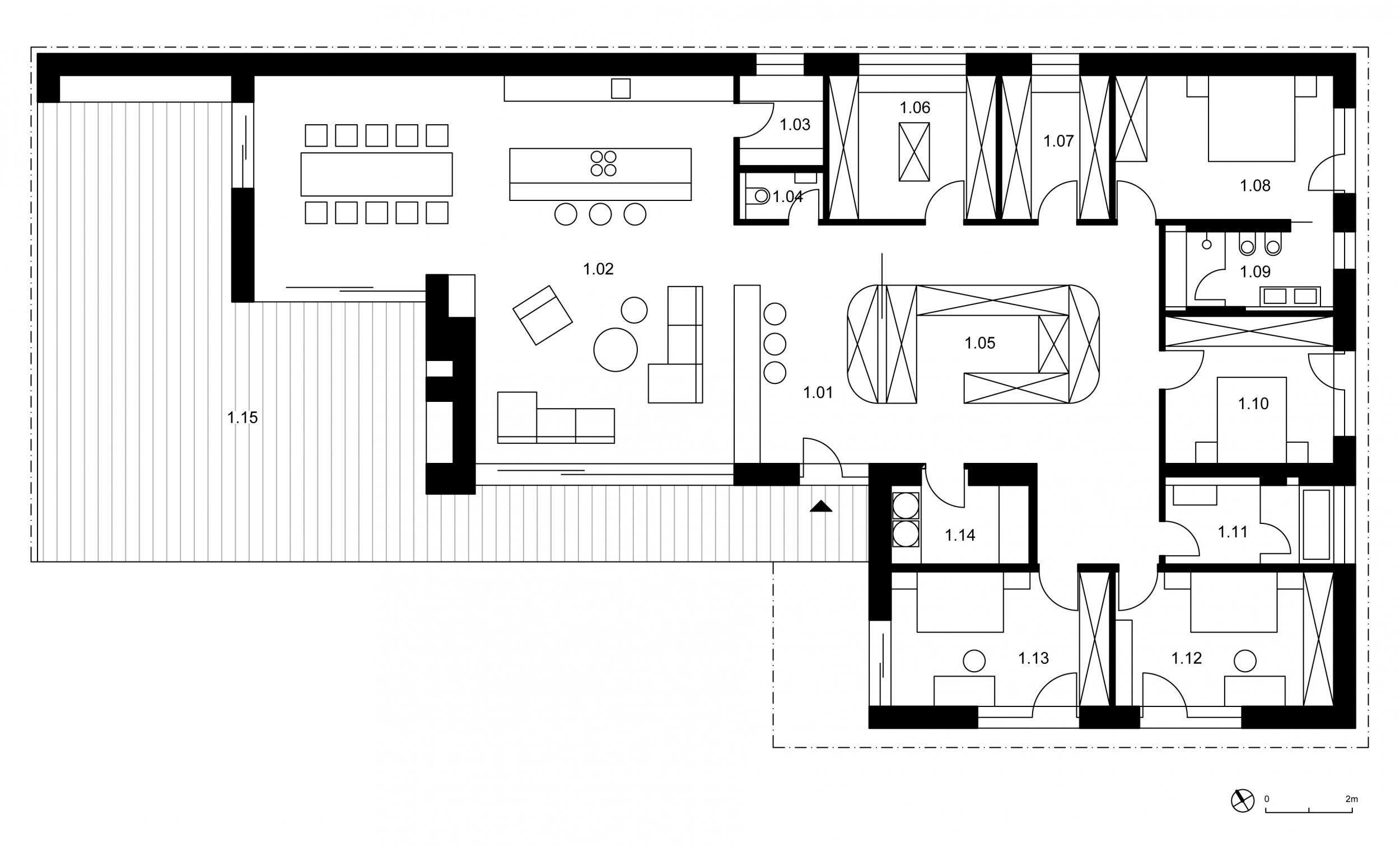
Pôdorys do tvaru písmena L sa otvára na juhozápad s viacerými odskokmi. Vstup do domu je zo stredu dispozície cez priestrannú vstupnú halu, z ktorej je prístupná denná a nočná časť. Denná časť pozostáva z kuchyne s komorou, jedálne pre desať ľudí a obývacej časti s krbom. Z dennej časti je prístupná veľká prekrytá juhozápadna terasa. Nočná časť domu pozostáva zo spálne rodičov, dvoch detských izieb a hosťovkej izby. Dom má dve kúpeľne, z ktorých je jedna priamo prístupná z hlavnej spálne, a samostatnú toaletu. Skladové priestory zabezpečujú dva samostatné šatníky a jeden uprostred nočnej chodby.

Pôdorys bungalovu 248,60 m² + terasa

1.01 vstupná hala 18,8 m² / 1.02 denná zóna 77,9 m² / 1.03 komora 4,0 m² / 1.04 wc 1,9 m² / 1.05 šatník 42,2 m² / 1.06 šatník 13,0 m² / 1.07 šatník 8,3 m² / 1.08 spálňa rodičia 16,8 m² / 1.09 kúpelňa 1 6,9 m² / 1.10 spálňa hostia 13,4 m² / 1.11 kúpelňa 2 7,1 m² / 1.12 spálňa detská 16,0 m² / 1.13 spálňa detská 16,0 m² / 1.14 práčovňa 6,3 m² / 1.15 terasa 


Prehľadávaj

Kategória

Rozloha

Cena

vlastnosti