Dvojpodlažný rodinný dom, Rusovce

Funkcionalistický rodinný dom sme navrhli v kombinácii bielej omietky a hnedej prevetrávanej fasády. Citlivá hmotová kompozícia, správny pomer otvorov k stenám a výber materiálov fasád robia tento dom opticky štíhlejším, ako v skutočnosti je.

Dispozičné riešenie domu odpovedá vonkajším tvarom stavby. Na prízemií sa nachádzajú vstupné priestory, garáž, hosťovská a denná časť, ktoré majú prístup na veľkú západnú terasu. Na poschodí je nočná zóna - spálne, kúpeľne a úložné priestory.

1. podlažie 170,4 m² (celková plocha 258,4 m²)

01 zádverie 6,1 m² 02 šatník 4,7 m² 03 hala 12,4 m² 04 denná zóna 69,5 m² 05 špajza 1,7 m² 06 chodba hostia 2,1 m² 07 kúpeľňa hostia 4,1 m² 08 izba hostia 21,0 m² 09 garáž 39,6 m² 10 technická miestnosť 9,2 m²

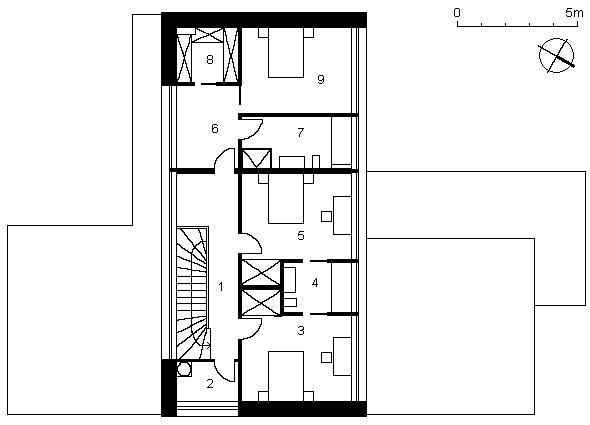
2. podlažie 88,0 m² (celková plocha 258,4 m²)

01 nočná chodba 11,7 m² 02 práčovňa 3,9 m² 03 spálňa dieťa 1 14,9 m² 04 detská kúpeľňa 5,4 m² 05 spálňa dieťa 2 14,9 m² 06 predsieň rodičia 8,0 m² 07 kúpeľňa rodičia 8,9 m² 08 šatník rodičia 5,4 m² 09 hlavná spálňa 14,9 m²


Prehľadávaj

Kategória

Rozloha

Cena

vlastnosti