Mramorový byt, Riverpark, Bratislava

Luxusný byt na luxusnej adrese bude slúžiť na prenájom alebo ďalší predaj. Napriek faktu, že majiteľ miluje mramor, sme to s ním neprehnali a použili ho v správnej miere na tých správnych miestach. Interiér pôsobí aj s kameňom teplo a útulne.

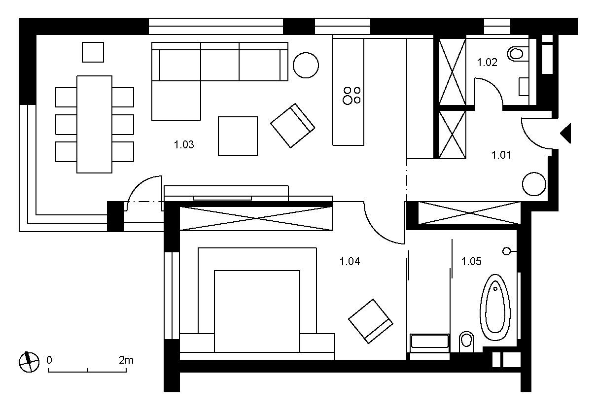
Pôdorys bytu 11 po rekonštrukcii 90,0 m²

1.01 chodba 9,3 m² / 1.02 wc 4,1 m² / 1.03 denná časť 44,2 m² / 1.04 spálňa 23,5 m² / 1.05 kúpeľňa 8,9 m²

Pôdorys bytu 11 pred rekonštrukciou 89,8 m²

1.01 vstupná chodba 9,4 m² / 1.02 wc 2,6 m² / 1.03 sklad s práčkou 4,5 m² / 1.04 denná časť 41,0 m² / 1.05 spálňa 23,3 m² / 1.06 šatník 3,0 m² / 1.07 kúpeľňa 6,0 m²


Prehľadávaj

Priestory

Rozloha

Cena

vlastnosti