Extravagantný pánsky apartmán, Skypark by Zaha Hadid, Bratislava

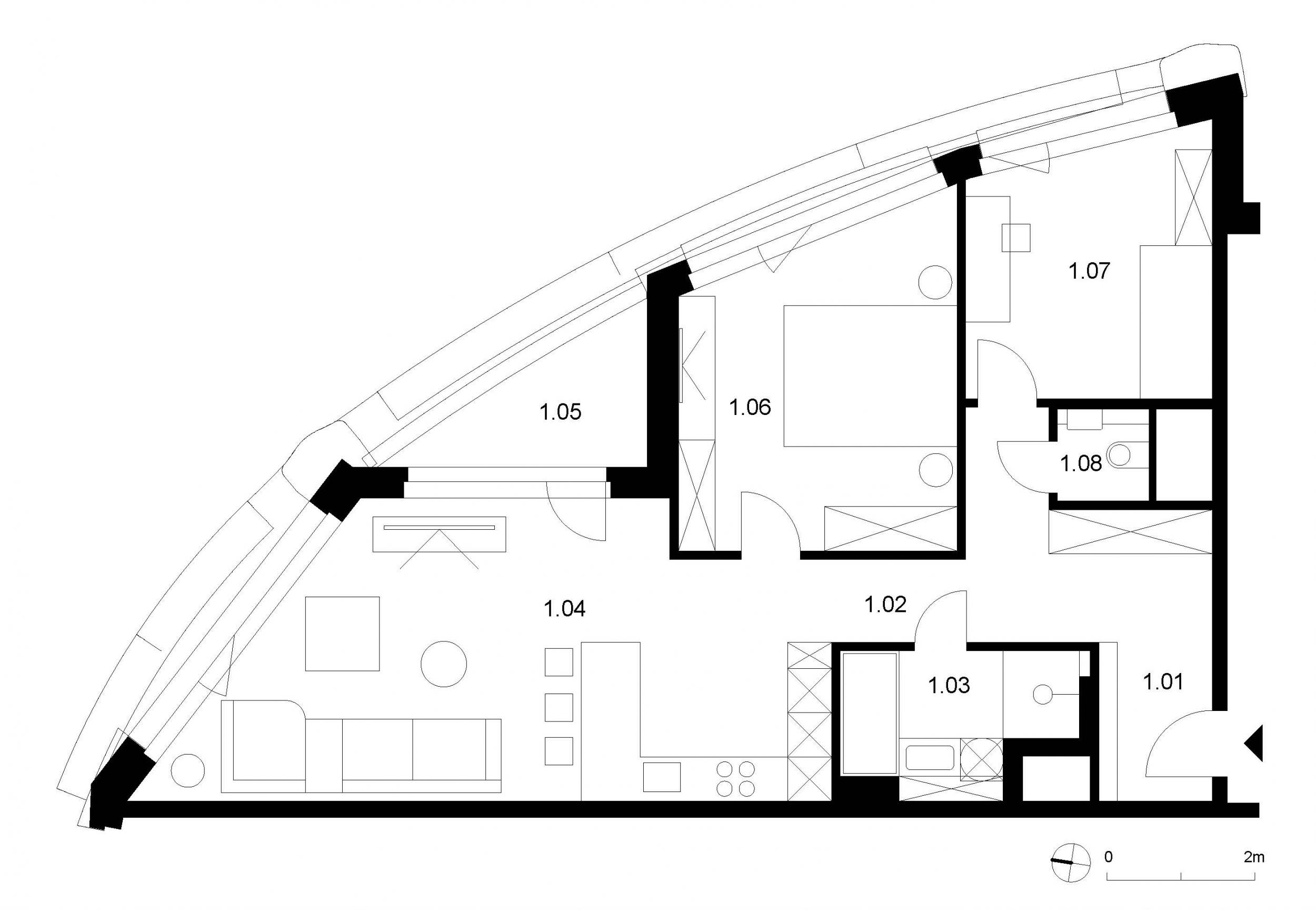
Pôdorys bytu 82m²

1.01 vstupná hala 6,1m² / 1.02 chodba 6,9m² / 1.03 kúpeľňa 4,8 m² / 1.04 denná zóna 31m² / 1.05 loggia 4,4m² / 1.06 spálňa 16m² / 1.07 detská izba 11,3m² / 1.08 wc 1,5m²


Prehľadávaj

Priestory

Rozloha

Cena

vlastnosti